
Klassisches Einfamilienhaus mit Carport und Garage in zentraler Lage in Leck
Objektdaten
Objektbeschreibung
Baujahr 1962, Mauerwerk massiv, Dacheindeckung mit Pfannen als Walmdach, Fenster und Türen sind aus Kunststoff mit Isolierverglasung
Heizung
Ölzentralheizung mit Warmwasserbereitung, Baujahr 2010
Grundstück
604,00 m² großes Gartengrundstück, umgeben von Hecken, Bäumen und Rasenfläche
Das Grundstück ist voll erschlossen und an die öffentliche Kanalisation angeschlossen.
Energieausweis
Energieausweis: Bedarfsausweis
Endenergiebedarf: 204,9 kWh/(m²*a)
Wesentl. Energieträger: Öl
Energieeffizienzklasse: G
Energieausweis gültig bis: 05.07.2028
Baujahr lt. Energieausweis: 1962
Irrtum vorbehalten.
Ausstattung
Ausstattungsbeschreibung
Besonderes
•Wintergarten
•Der Anschluss eines Kaminofens wäre möglich.
•Vollkeller
•Balkon
Lage
Bevorzugte, zentrale Wohnlage nahe dem Zentrum von Leck. Die Innenstadt von Leck mit zahlreichen Einkaufsmöglichkeiten ist gut fußläufig zu erreichen. Leck ist stündlich mit dem Schnellbus von Niebüll nach Flensburg gut zu erreichen. Kindergarten, Schulen und Ärzte sind vorhanden.
Mit dem Laden der Karte akzeptieren Sie die Datenschutzerklärung von Google.
Mehr erfahren
Weitere Beschreibung
Es liegt ein Energiebedarfsausweis vor.
Dieser ist gültig bis 5.7.2028.
Endenergiebedarf beträgt 204.90 kwh/(m²*a).
Wesentlicher Energieträger der Heizung ist Öl.
Das Baujahr des Objekts lt. Energieausweis ist 1962.
Die Energieeffizienzklasse ist G.
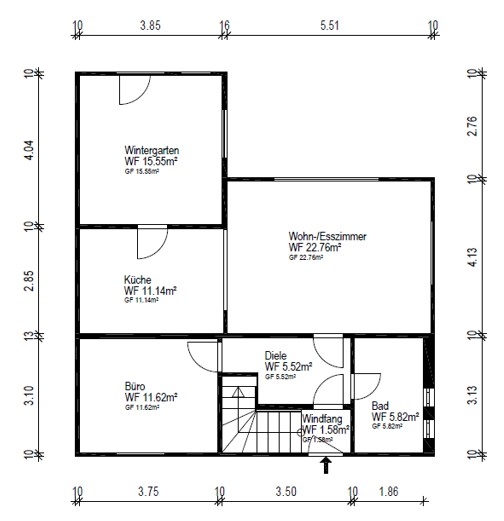
Raumaufteilung/Raumgrößen
Erdgeschoss:
Wohn- /Esszimmer: 22,76 m²
Wintergarten: 15,55 m²
Büro: 11,62 m²
Küche: 11,14 m²
Bad: 5,82 m²
Diele: 5,52 m²
Windfang: 1,58 m²
Erdgeschoss gesamt: ca. 73,99 m²
Dachgeschoss:
Schlafen: 17,40 m²
Kind 2: 9,04 m²
Kind 1: 7,03 m²
Bad: 4,75 m²
Diele: 4,66 m²
Balkon: 1,15 m²
Dachgeschoss gesamt: ca. 44,03 m²
Wohnfläche gesamt: ca. 118,02 m²
Kellergeschoss (Nutzfläche):
Vorraum: 9,94 m²
Partyraum: 22,76 m²
Vorräte: 6,48 m²
Waschen: 11,63 m²
Heizung: 11,14 m²
Kellergeschoss gesamt: ca. 61,95 m²
Zzgl.: Garage, Terrasse und Carport
Für die Berechnungen der Raumgrößen liegen jeweils die Grundflächen der Räume zugrunde.
Alle Maße sind ca. Maße, Irrtum vorbehalten.
Energieausweis
Ihr Ansprechpartner

25899 Niebüll
Ähnliche Immobilien


Ebenerdige Neubau-Doppelhaushälfte in ruhiger, zentrumsnaher Lage
